防火卷帘门是什么
作者:新澳内部精准码资料
日期:2024-05-10 14:29:36
阅读量:0
防火卷帘是一种适用于建筑物较大洞口处的防火、隔热设施。常见的防火卷帘有:钢质防火卷帘、无机纤维复合防火卷帘以及特级防火卷帘。与普通卷帘门不一样的是,防火卷帘具有很好的防火性能,其耐火完整性远大于普通卷帘门。特级防火卷帘除了耐火完整性以外,还具有隔热和防烟性能。
防火卷帘广泛应用于工业与民用建筑的防火分隔处,能有效地阻止火势蔓延,保障群众的生命财产安全。因此,在验收过程中应对其设置情况、控制及反馈、急停逃生功能进行重点检查。
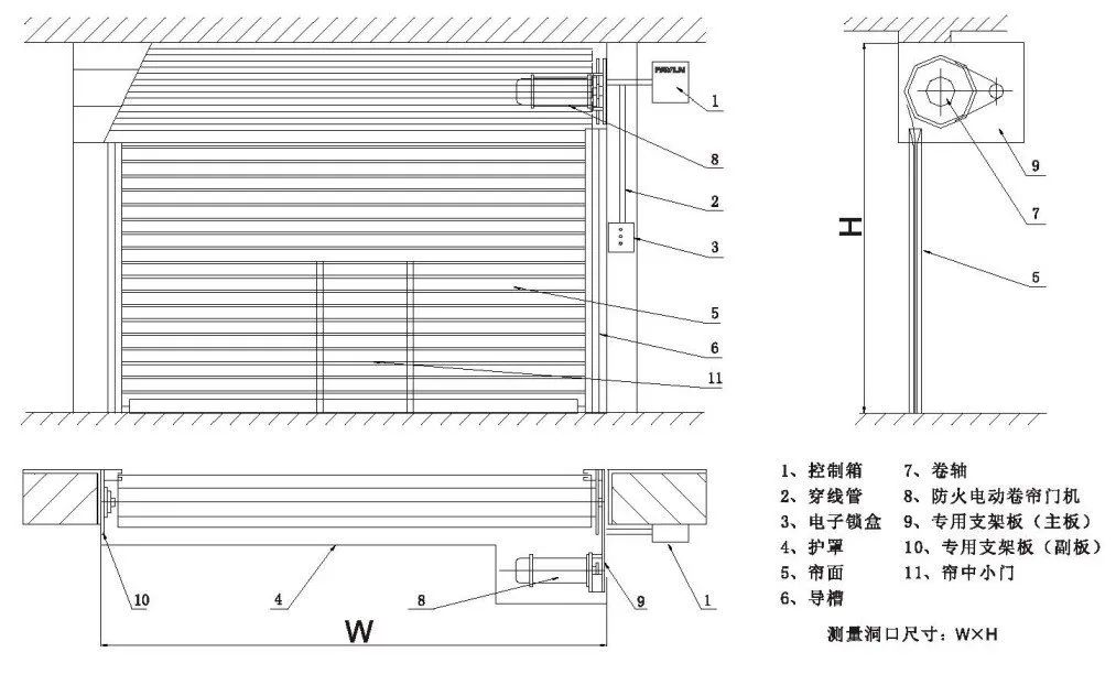
结构组成

防火卷帘由帘面、导轨、座板、门楣、箱体并配以卷门机和控制箱等结构组成,
防火卷帘的帘面平时卷放在卷轴上,操作人员平时通过按钮来控制卷门机运转,带动由链条和链轮组成的传动机构实现帘面启闭。火灾发生时,当环境温度、烟气浓度达到温感、烟感探测器感应范围时,探测器会发出报警信号,控制箱接收到报警信号后,自动控制防火卷帘关闭至中停位置,延时一段时间后继续关闭至完全闭合。在电力被切断的情况下,操作人员拉动卷门机上的手动拉链使卷帘靠自重下降,另外卷门机上还配有温控释放装置,发生火灾时环境温度升高使其感温元件动作后,卷帘靠自重下降直至关闭。