防火卷帘门常见分类有哪些
作者:新澳内部精准码资料
日期:2024-06-18 10:19:16
阅读量:0
防火卷帘门常见分类有哪些?防火卷帘门常见的类型主要有三种:钢制气雾式防火卷帘门、钢制复合式防火卷帘门、无机布双轨双帘防火卷帘门。

钢制气雾式防火卷帘门
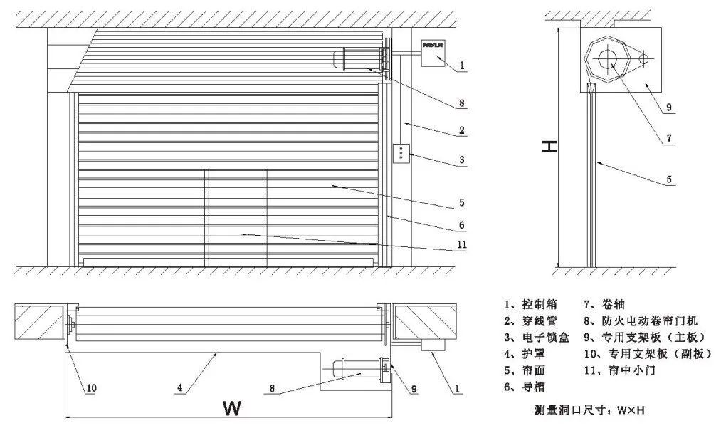
钢制防火卷帘运行功能的调试应符合下列规定:
1.钢制防火卷帘启、闭运行的平均噪声不应大于85dB。
2.钢制防火卷帘装配完成后,帘面在导轨内运行应平稳,不应有脱轨和明显的倾斜现象。双帘面卷帘的两个帘面应同时升降,两个帘面之间的高度差不应大于50mm。
3.钢制防火卷帘电动启、闭的运行速度应为2m/min~7.5m/min,其自重下降速度不应大于9.5m/min。
钢制复合式防火卷帘门
钢制复合式防火卷帘门所采用的原材料经过试验可以能经受住高温的考验。
特级防火卷帘门厂家生产的产品隔热、防烟、耐火、防火性能是值得信赖的,在人员密集的高层建筑,大型超市卖场或者是公工厂企业、厂房仓库等有消防要求的公共场所,起到阻止火势蔓延的作用,能够为人员的逃生疏散和消防灭火争取宝贵的时间。
无机布双轨双帘防火卷帘门
无机布双轨双帘防火卷帘门具有
钢质防火卷帘门的主要性能,耐火时间≥3小时、防热辐射能力强、可自带烟感、与火灾自动报警系统联动。配温控熔断装置,实现火灾初期的自动下降、报警,阻止火灾蔓延等。
另外与钢质防火卷帘门相比,无机布双轨双帘防火卷帘门具有背火面温升不超过GB/TPP78规定的140℃的特征,免装喷淋,具有卷帘自重轻,减少了建筑的载荷,其安全性更可靠。