疑问:3层办公建筑,内廊敞开楼梯间入口处需要设挡烟垂壁吗?各地图纸设计不一。
1. 《挡烟垂壁》31条:用不燃材料制成,垂直安装在建筑3~顶棚+横梁+或吊顶下,能在火灾时形成一定的蓄烟空间的挡烟分隔设施。设置防烟分区使用。
2. 《挡烟垂壁》41条:安装方式:2~固定式+活动式,材料刚度:2~柔性+刚性。刚性单节宽度≯2.0m,柔性单节宽度≯4.0m。
3. 《挡烟垂壁》512条:材料:5~不燃材料+金属板材≮0.8mm熔点≮700+不燃无机复合板≮10mm+无机纤维织物拉力600N300N+防火玻璃。
4. 《烟标》421条:设置排烟系统的场所或部位应采用挡烟垂壁、结构梁及隔墙等划分防烟分区。防烟分区不应跨越防火分区。(个人注:依据此内廊敞开楼梯间应设。)
5. 《烟标》423条:设置排烟设施的建筑内,敞开楼梯和自动扶梯穿越楼板的开口部应设置挡烟垂壁等设施。(个人注:主要指开口部位,上下同一防火分区也要设挡烟垂壁。)《烟标图示》:
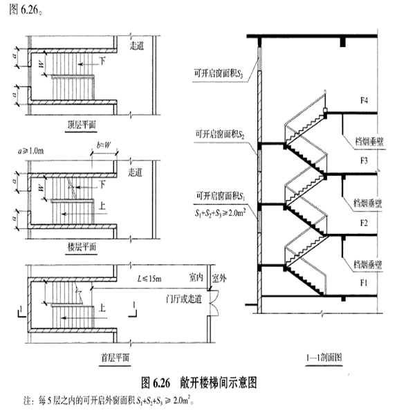
6. 《建规指南》641条P319:疏散楼梯间应具有较高防火、防烟性能…如下图示敞开楼梯间设挡烟垂壁。
7. 《建规》532条文说明:对于本规范允许采用敞开楼梯间的建筑,如5层或5层以下的教学建筑、普通办公建筑等,该敞开楼梯间可以不按上、下层相连通的开口考虑。5513条文说明:对于多层建筑,在我国华东、华南和西南部分地区,采用敞开式外廊的集体宿舍、教学、办公等建筑,当其中与敞开式外廊相连通的楼梯间,由于具有较好的防止烟气进入的条件,可以不设置封闭楼梯间。(个人注:此情况敞开楼梯间较好防烟,防火分区不按上下相通。)
总结:内廊式办公等敞开楼梯间应设挡烟垂壁(《建规指南》图示)。