新澳内部精准码资料厂家直销:防火门,防火卷帘门,挡烟垂壁,防火窗,防爆门窗。一站式服务!新澳内部精准码资料服务地区:重庆,四川,贵州等地区
厂家联系电话:!   159 2277 1942
159 2277 1942

新闻中心

避难层(间)外窗开启问题

作者:   日期:2025-08-07 14:04:49   阅读量:0

  避难层(间)外窗开启问题

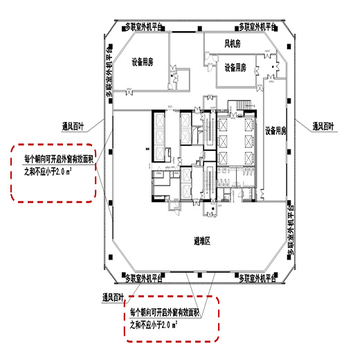
  问题:采用自然通风方式防烟的避难层中的避难区仅在一个朝向设置可开启外窗;有效面积小于避难区地面面积的2%,或在不同朝向设置外窗时,未同时考虑总有效面积不小于地面面积的2%与每个朝向的面积不小于2㎡,导致朝向开启面积不足。

  解答:参考依据:应符合《消防设施通用规范》GB 55036-2022 第11.2.4条的规定。参考做法:

  设计单位设计人员应确保采用自然通风方式的避难层(间)有不同朝向的可开启外窗,且开启面积须满足相关标准的要求,避难层自然通风窗设置见图1。

现在的位置:锦宏防火门窗 > 新闻中心 > 行业新闻

栏目导航

热门标签 重庆防火门厂家 重庆挡烟垂壁厂家 四川防火门厂家 贵州防火门厂家 四川挡烟垂壁厂家 贵州防火卷帘门厂家 贵州挡烟垂壁厂家 四川防火卷帘门厂家 重庆防火门价格多少钱一平方 重庆防火卷帘门厂家 贵州防火门价格多少钱一平方